情報更新日:2025年08月22日/広告有効期限:なし
表示閲覧回数(過去30日間):28
お急ぎの方はお電話からお気軽にどうぞ!
075-213-6055 営業時間 / 9:30~19:00 定休日 / 日・祝・盆・正月
>物件詳細情報
| 基本情報 | |
|---|---|
| 物件番号 | 045DF-1F | 
| 店舗形態 | 事務所, 店舗, 路面店舗 | 
| オススメ業種 | 美容関係, 物販関係, 事務所 | 
| 物件名 | 五条烏丸空ビル 事業用テナント | 
| 物件の状態 | 空き | 
| 引越し時期 | 即 | 
| 契約形態と期間 | 定期契約期間:10年間再契約:可 | 
| 所在地・交通 | |
|---|---|
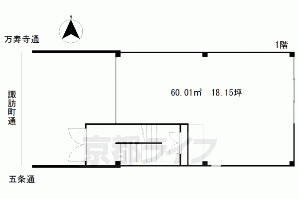
| 所在地 | 京都府京都市下京区高砂町-377-3 | 
| 交 通1 | 京都市営地下鉄烏丸線五条駅 徒歩3分 | 
| 交 通2 | 京都市営地下鉄烏丸線四条駅 徒歩9分 | 
| 賃料 | |
|---|---|
| 賃 料 | 398,000円(税込) | 
| 敷 金 | 3ヶ月 | 
| 礼 金 | 1ヶ月 | 
| その他 | |
|---|---|
| 備考 | 地下鉄烏丸線五条駅より徒歩3分とアクセスも良好です。 京都のオフィス向け貸事務所、飲食店や物販店舗向けテナント物件など事業用賃貸の募集・物件探しのご依頼は京都ライフのテナント事業部にお任せください。 五条駅 190m,四条駅 650m | 
| 建物 | |
|---|---|
| 建物構造 | 鉄筋コンクリート造 | 
| 建物階建て | 地上4階 | 
| 施工年月 | 1973(昭和47)年 02月 | 
| 募集物件の階数 | 地上 1階 1F号室 | 
| 契約面積 | 60.01m2(18.15坪) | 
| 用途地域 | 商業地域 | 
| 設備 | |
|---|---|
| 水道 | 公営 | 
| 下水道 | 公共下水 | 
| 床仕様 | スケルトン | 
| 駐車場 | |
|---|---|
| 状 況 | 無し | 
| 取引情報 | |
|---|---|
| 取引態様 | 媒介 | 
| 客付 | 不可 | 
この物件をチェックした人はこんな物件も見ています
- 京都市中京区錦堀川町、堀川通と四条通の交差点付近のテナントビル賃貸。 気になる業種がございましたらお気軽にご相談ください。 交差点角地で視認性も良く、
 
 京都府京都市中京区錦堀川町-659
  94.15m2(28.48坪) 94.15m2(28.48坪)
  198,000円(税込) 198,000円(税込)
- 京都市中京区錦堀川町、堀川通と四条通の交差点付近のテナントビル賃貸。 残念ながら重飲食業はご遠慮頂いておりますが、カフェ等までの軽飲食なら相談可能です。
 
 京都府京都市中京区錦堀川町-659
  156.30m2(47.28坪) 156.30m2(47.28坪)
  550,000円(税込) 550,000円(税込)
- 京都市中京区亀甲屋町、高倉通に面したテナント賃貸。 飲食業も相談可能ですが近隣へご迷惑にならない業種に限ります。 室内の改装は必要になりますが、外観の変更は不可となります。
 
 京都府京都市中京区亀甲屋町-608-1
  70.47m2(21.32坪) 70.47m2(21.32坪)
  220,000円(税込) 220,000円(税込)
- 京都市中京区仁王門町、角地に位置した路面テナント賃貸。 飲食店も含め相談可能ですので業種に関して気になるものがあればお気軽にご相談ください。 二条通と車屋町通に面した路面テナントで視認性もございます。
 
 京都府京都市中京区仁王門町-16-2
  47.30m2(14.31坪) 47.30m2(14.31坪)
  308,000円(税込) 308,000円(税込)
- 京都市下京区立売中之町、四条通に面したテナントビル賃貸。 事務所やサービス業のお店のおすすめのテナントとなります。 ワンフロアワンテナントでお隣気にする必要はございません。
 
 京都府京都市下京区立売中之町-104
  179.27m2(54.23坪) 179.27m2(54.23坪)
  954,448円(税込) 954,448円(税込)
今日チェックした物件
お急ぎの方はお電話からお気軽にどうぞ!
075-213-6055 営業時間 / 9:30~19:00 定休日 / 日・祝・盆・正月


 075-213-6055
075-213-6055






 
        
        
       
      

 
          




 075-213-6055
075-213-6055