情報更新日:2025年09月20日/広告有効期限:なし
表示閲覧回数(過去30日間):20
お急ぎの方はお電話からお気軽にどうぞ!
075-213-6055 営業時間 / 9:30~19:00 定休日 / 日・祝・盆・正月
>物件詳細情報
| 基本情報 | |
|---|---|
| 物件番号 | 67017-4F |
| 店舗形態 | 事務所 |
| オススメ業種 | 事務所 |
| 物件名 | 京都御池第一生命ビル 事業用テナント |
| 物件の状態 | 入居中 |
| 引越し時期 | 2025(令和7)年10月下旬 |
| 契約形態と期間 |
普通更新料:0ヶ月 |
| 所在地・交通 | |
|---|---|
| 所在地 | 京都府京都市中京区笹屋町-435 |
| 交 通1 | 京都市営地下鉄烏丸線烏丸御池駅 徒歩1分 |
| 交 通2 | 京都市営地下鉄東西線烏丸御池駅 徒歩1分 |
| 賃料 | |
|---|---|
| 賃 料 | 賃料未定 |
| その他 | |
|---|---|
| 備考 | ビジネス拠点に最適ですので是非お気軽に条件等ご確認ください。 京都のオフィス向け貸事務所、飲食店や物販店舗向けテナント物件など事業用賃貸の募集・物件探しのご依頼は京都ライフのテナント事業部にお任せください。 烏丸御池駅 50m,烏丸御池駅 50m |
| 建物 | |
|---|---|
| 建物構造 | 鉄筋コンクリート造 |
| 建物階建て |
地上10階 地下1階 |
| 施工年月 | 1984(昭和58)年 09月 |
| 募集物件の階数 | 地上 4階 4F号室 |
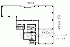
| 契約面積 | 83.63m2(25.30坪) |
| 用途地域 | 商業地域 |
| 設備 | |
|---|---|
| 水道 | 公営 |
| 下水道 | 公共下水 |
| エレベータ | 有/3基以上 |
| エアコン | 有 |
| トイレ | 有/専用 |
| 床仕様 | OAフロア |
| 利用時間 | 24時間 |
| 照明設備 | 有 |
| 駐車場 | |
|---|---|
| 状 況 | 無し |
| 取引情報 | |
|---|---|
| 取引態様 | 媒介 |
| 客付 | 不可 |
この物件をチェックした人はこんな物件も見ています
- 京都市中京区錦堀川町、堀川通と四条通の交差点付近のテナントビル賃貸。 気になる業種がございましたらお気軽にご相談ください。 交差点角地で視認性も良く、

京都府京都市中京区錦堀川町-659
94.15m2(28.48坪)
198,000円(税込)
- 京都市中京区錦堀川町、堀川通と四条通の交差点付近のテナントビル賃貸。 残念ながら重飲食業はご遠慮頂いておりますが、カフェ等までの軽飲食なら相談可能です。

京都府京都市中京区錦堀川町-659
156.30m2(47.28坪)
550,000円(税込)
- 京都市中京区亀甲屋町、高倉通に面したテナント賃貸。 飲食業も相談可能ですが近隣へご迷惑にならない業種に限ります。 室内の改装は必要になりますが、外観の変更は不可となります。

京都府京都市中京区亀甲屋町-608-1
70.47m2(21.32坪)
220,000円(税込)
- 京都市中京区仁王門町、角地に位置した路面テナント賃貸。 飲食店も含め相談可能ですので業種に関して気になるものがあればお気軽にご相談ください。 二条通と車屋町通に面した路面テナントで視認性もございます。

京都府京都市中京区仁王門町-16-2
47.30m2(14.31坪)
308,000円(税込)
- 京都市下京区立売中之町、四条通に面したテナントビル賃貸。 事務所やサービス業のお店のおすすめのテナントとなります。 ワンフロアワンテナントでお隣気にする必要はございません。

京都府京都市下京区立売中之町-104
179.27m2(54.23坪)
954,448円(税込)
今日チェックした物件
- 京都下京区西七条南東野町、七条通に面する2階のテナント賃貸。 七条御前通バス停から徒歩1分。交通量の多い七条通り沿いで1階には100円ローソンがあります。 クリニックに事務所、飲食店も相談可能です。
-

京都府京都市下京区西七条南東野町-18
156.82m2(47.44坪)
330,000円(税込)
- 京都市北区上賀茂桜井町、北山通に面した路面テナント賃貸。 気になる業種に関して相談可能ですのでお気軽にご相談ください。 地下鉄烏丸線北山駅より徒歩5分とアクセスも良好です。
-

京都府京都市北区上賀茂桜井町-63
116.90m2(35.36坪)
407,000円(税込)
- 京都市中京区丸屋町、高倉通に面したマンションのテナント賃貸。 残念ながら重飲食業に関してご遠慮しております。その他業種お気軽にご確認ください。
-

京都府京都市中京区高倉通三条下る丸屋町-159-1
54.90m2(16.61坪)
401,962円(税込)
- 京都市中京区三坊西洞院町、西洞院通に面したテナント賃貸。 現状事務所仕様で、ビジネス拠点としての利用にオススメです。 店舗としても利用可能ですの気になる業種があればお気軽にご相談ください。
-

京都府京都市中京区三坊西洞院町-565
55.84m2(16.89坪)
165,000円(税込)
- 京都市北区上賀茂向縄手町、人目に付く外観のテナント賃貸。 業種に関して相談可能ですのでお気軽にご相談ください。 飲食業も相談可能ですのでお気軽にご確認ください。
-

京都府京都市北区上賀茂向縄手町-16
73.80m2(22.32坪)
132,000円(税込)
お急ぎの方はお電話からお気軽にどうぞ!
075-213-6055 営業時間 / 9:30~19:00 定休日 / 日・祝・盆・正月


075-213-6055














075-213-6055