京都のオフィス向け貸事務所(オフィス)やオフィスビル、飲食店や物販店舗向けテナント物件を多数紹介

お問い合わせ

情報更新日:2025年09月29日/広告有効期限:なし

表示閲覧回数(過去30日間):23

北区上賀茂路面テナント 事業用テナント

お問い合わせ
お気に入りリスト
  • お気に入りに追加
  • 概算費用計算
  • 物件資料
  • 印刷する

京都北区上賀茂榊田町、鞍馬街道に面した1階路面のテナント賃貸。 北山駅に徒歩5分と近く、美容室や物販店におすすめ。 飲食は不可となりますが業種などはお気軽にお問い合わせ下さい。

医療関係  塾・学校・教育関係  美容関係  物販関係 
物件名 北区上賀茂路面テナント 事業用テナント
賃 料 220,000
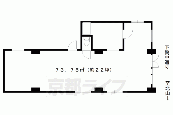
面 積 73.75m2(22.31坪)
共益費・管理費 -
所在地 京都府京都市北区上賀茂榊田町-86-1
アクセス1 京都市営地下鉄烏丸線北山駅 徒歩5分
アクセス2 京都市営地下鉄烏丸線松ケ崎駅 徒歩14分
  • 物件詳細情報
  • 物件資料
  • お気に入りに追加
  • 概算費用計算
  • 印刷する

お問い合わせ

お急ぎの方はお電話からお気軽にどうぞ!

075-213-6055 営業時間 / 9:30~19:00 定休日 / 日・祝・盆・正月

物件検索TOPに戻る

>物件詳細情報

  • お気に入りに追加
  • お気に入りに追加
  • 概算費用計算
  • 物件資料
  • 印刷する
基本情報
物件番号 28601-1KAI
店舗形態 事務所, 店舗, 路面店舗, 倉庫
オススメ業種 医療関係, 塾・学校・教育関係, 美容関係, 物販関係
物件名 北区上賀茂路面テナント 事業用テナント
物件の状態 空き
引越し時期
契約形態と期間 普通契約期間:3年間更新料:1ヶ月22,000円
所在地・交通
所在地 京都府京都市北区上賀茂榊田町-86-1
交 通1 京都市営地下鉄烏丸線北山駅 徒歩5分
交 通2 京都市営地下鉄烏丸線松ケ崎駅 徒歩14分
賃料
賃 料 220,000円(税込)
保証金 3ヶ月
礼 金 1ヶ月
その他
備考 京都のオフィス向け貸事務所、飲食店や物販店舗向けテナント物件など事業用賃貸の募集・物件探しのご依頼は京都ライフのテナント事業部にお任せください。 北山駅 350m,松ケ崎駅 1100m
建物
建物構造 鉄筋コンクリート造
建物階建て
地上3階   
施工年月 1970(昭和44)年 10月  
募集物件の階数 地上 1階  1階号室
契約面積 73.75m2(22.31坪)
用途地域 2種中高
設備
水道 公営
下水道 公共下水
エアコン
トイレ 有/専用
給湯室 有/専用
キッチン 有/専用
シャッター 有/手動
照明設備
駐車場
状 況 無し
取引情報
取引態様 媒介
客付 不可
 

この物件をチェックした人はこんな物件も見ています

京都市中京区錦堀川町、堀川通と四条通の交差点付近のテナントビル賃貸。 気になる業種がございましたらお気軽にご相談ください。 交差点角地で視認性も良く、

京都府京都市中京区錦堀川町-659
94.15m2(28.48坪)
198,000円(税込)
京都市中京区錦堀川町、堀川通と四条通の交差点付近のテナントビル賃貸。 残念ながら重飲食業はご遠慮頂いておりますが、カフェ等までの軽飲食なら相談可能です。

京都府京都市中京区錦堀川町-659
156.30m2(47.28坪)
550,000円(税込)
京都市中京区亀甲屋町、高倉通に面したテナント賃貸。 飲食業も相談可能ですが近隣へご迷惑にならない業種に限ります。 室内の改装は必要になりますが、外観の変更は不可となります。

京都府京都市中京区亀甲屋町-608-1
70.47m2(21.32坪)
220,000円(税込)
京都市中京区仁王門町、角地に位置した路面テナント賃貸。 飲食店も含め相談可能ですので業種に関して気になるものがあればお気軽にご相談ください。 二条通と車屋町通に面した路面テナントで視認性もございます。

京都府京都市中京区仁王門町-16-2
47.30m2(14.31坪)
308,000円(税込)
京都市下京区立売中之町、四条通に面したテナントビル賃貸。 事務所やサービス業のお店のおすすめのテナントとなります。 ワンフロアワンテナントでお隣気にする必要はございません。

京都府京都市下京区立売中之町-104
179.27m2(54.23坪)
954,448円(税込)

今日チェックした物件

お問い合わせ

お急ぎの方はお電話からお気軽にどうぞ!

075-213-6055 営業時間 / 9:30~19:00 定休日 / 日・祝・盆・正月

物件検索TOPに戻る

Copyright©Zeus co,Ltd. All Rights Reserved.